






开发商:大汉亨景房地产开发有限公司
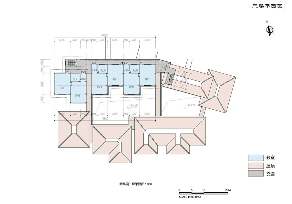
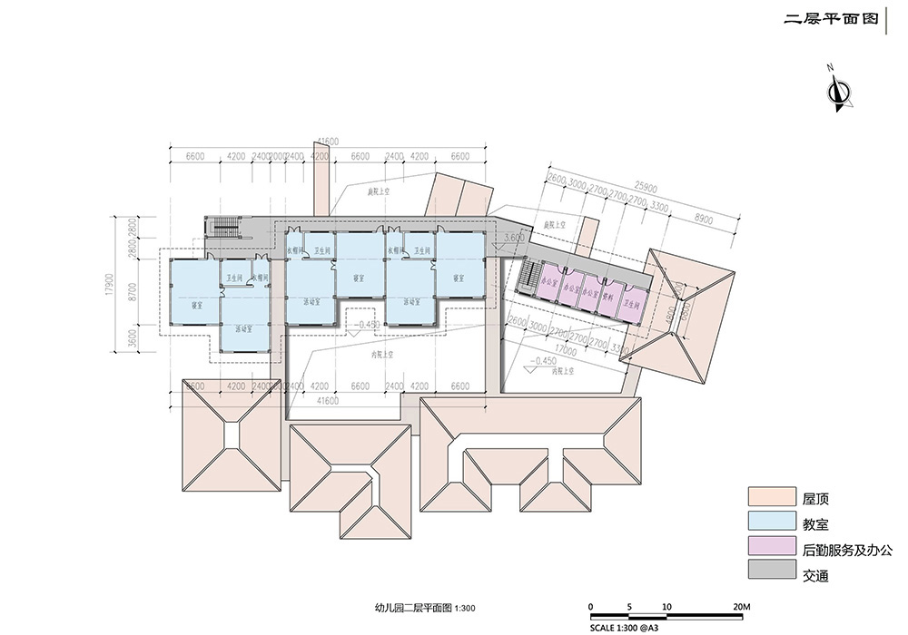
建筑规模:5500㎡
项目时间:2012年7月
长沙大汉汉园项目建筑设计项目位于“大汉·汉园”园区中部,是“大汉·汉园”生活情景艺境、景观示范场所,是“大汉·汉园”整个项目的点睛之笔和灵魂所在,同时还肩负起项目的售楼处之功能,起到情景营销和售楼展示的功能。
本项目的建筑为汉朝建筑风格,同时加入了新中式元素的运用, 在创意灵感的基础上,挖掘中国传统文化内涵,突显“汉文化”精髓。在整体布局上,通过分析汉长乐宫未央宫的布局特点,将庭院的套叠和叠戴型式完美运用,创造舒适宜人的庭院空间,形成了三院式中式建筑群落的布局特色。
多样的建筑元素强化了本次项目的细部设计,通过对传统建筑元素的分析以及与现代感和新中式的融合,创新设计了特色的屋顶、阙、斗拱和柱子的形态,实现了内容与形式的统一、整体与局部的统一、文化与艺术的统一以及传承与创新的统一。公共方型中式落客处,半私密、清静而优雅的庭院,以及回廊串接而成的汉室建筑,三者完美结合,和谐共融,共同展现中国传统文化精华,完美展现“天人合一”的空间艺术。